1973-2021
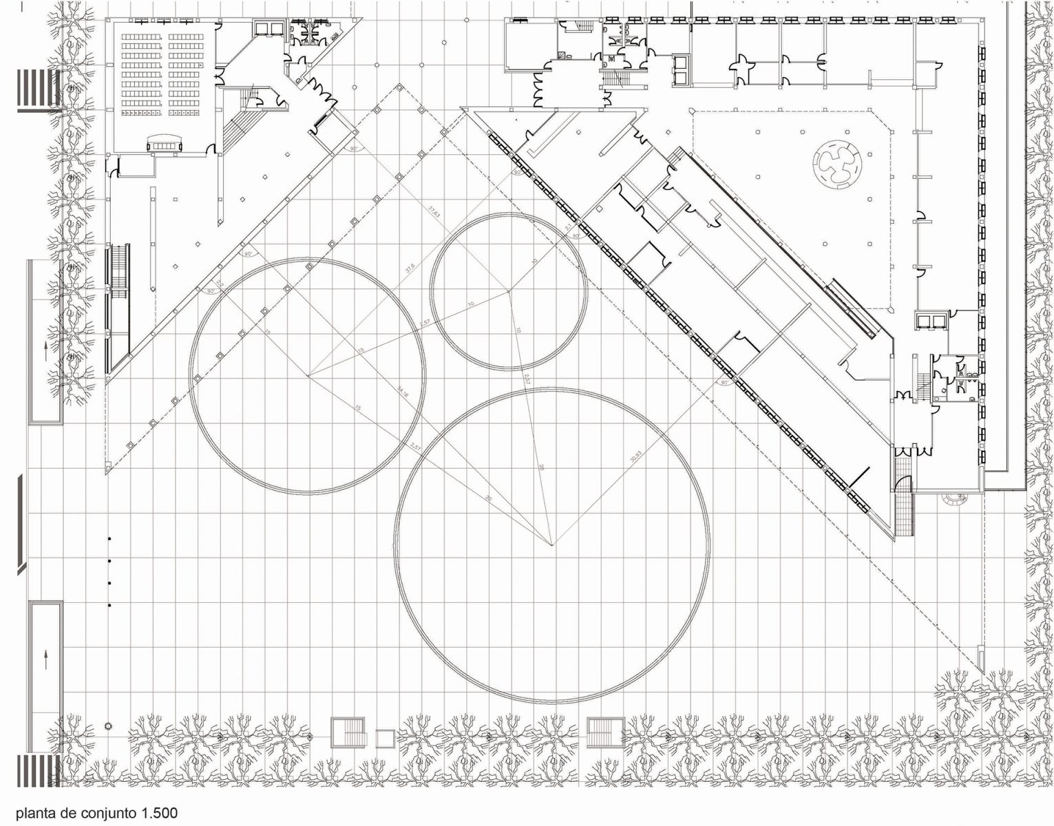
LANZA Atelier. Isabel Abascal, Alessandro Arienzo Ayuntamiento de Logroño, Avenida de la Paz, LogroñoEn 1973, un equipo encabezado por Rafael Moneo definió el proyecto que se convertiría en el Ayuntamiento de Logroño. Semanas después, el entonces presidente del gobierno, Luis Carrero Blanco, murió en un atentado de ETA. Este suceso recrudeció la grave crisis política de la dictadura. En medio del turbulento ambiente de agitación social, Moneo propuso un proyecto que ejemplificaba la «idea de edificio ciudadano» y creaba una gran plaza pública.
Esta intervención en Concéntrico comenzó con la decisión de intervenir esta plaza cívica, pero también dura y seca. En medio de su escala monumental, se trazaron tres circunferencias que definían espacios más cercanos a la escala humana. Los tres círculos de diámetros 20, 30 y 40 metros exprimían los pasos bajo los soportales propiciando un flujo de personas por el centro de la plaza, normalmente vacía. Los tres tenían 44 centímetros de alto: la altura de un banco donde poder sentarse.
Además de los encuentros culturales programados, otras actividades insospechadas y sorprendentes, a cargo de los viandantes, tenían lugar en los círculos de día y de noche.
Los círculos fueron construidos con ladrillo rojo visto, un material representativo de la arquitectura de interés social. Estos ladrillos se apilaron sin usar cemento. Así, al acabar el festival el 95% del material se pudo desmontar, donar a personas y constructoras (a través de un anuncio en el periódico), y reutilizarse. Son miles de piezas que se encuentran en un instante y luego se alejan unas de otras, como ciudadanos.
