8 Viviendas de Protección Pública de alquiler (IBAVI)
Carles G. Oliver, Antonio Martín, Xim Moyá, Miguel Nevado, Alfonso Reina Calle Salvador Espriu 39, Palma, Mallorca, Illes BalearsLa magnitud de las emergencias climática, sanitaria y habitacional, sugiere la necesidad de un cambio de modelo, productivo, social y económico, y un nuevo lenguaje basado en el decrecimiento del consumo de recursos, el crecimiento del confort, la autosuficiencia energética y material, la justicia social, el bienestar y la sostenibilidad ambiental, económica y social globales.
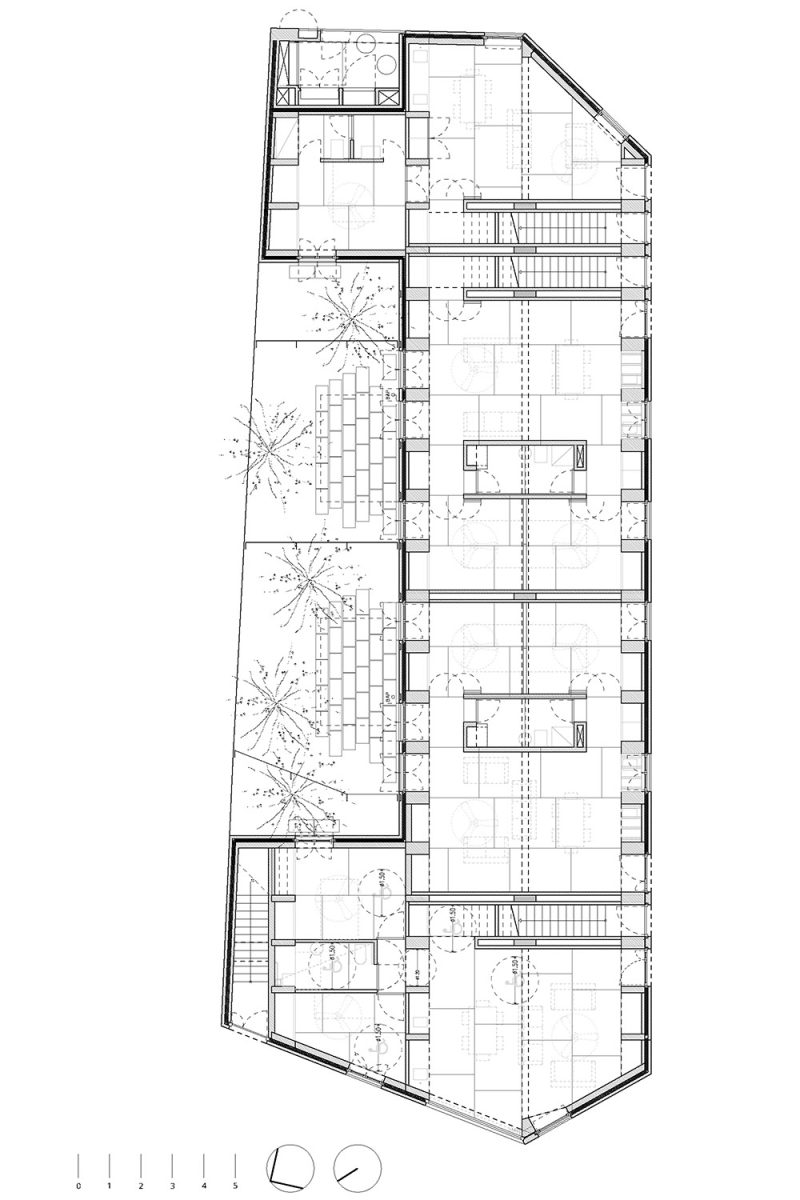
El proyecto es un ejemplo del lenguaje propuesto para el contexto de Mallorca, en el que programa, estructura, construcción y confort se resuelven con una estrategia unitaria que surge de las cualidades de los materiales utilizados. Consiste en la primera fase de un conjunto de dos promociones y un espacio público para fomentar la interrelación de las personas vecinas.
Para esta primera fase, el edificio demuestra la viabilidad de incorporar estructuras a compresión como medida para disfrutar de inercia térmica y refrescar en verano mediante una envolvente lo más pesada posible y con la menor huella de carbono. Este mecanismo se complementa con la ventilación cruzada mediante el aprovechamiento de la brisa marina (Embat), con el objetivo de reducir al mínimo la demanda de energía de calefacción y refrigeración.
Establecida la condición de peso con materiales locales de bajo impacto ambiental y baja huella de CO₂, se selecciona la piedra arenisca marès, procedente del mismo término municipal de Palma, por ser uno de los materiales locales industrializados con menos energía incorporada, y que configura gran parte del paisaje construido de la isla, presente tanto en la arquitectura vernácula como la institucional.
Establecida la condición de peso con materiales locales de bajo impacto ambiental y baja huella de CO₂, se selecciona la piedra arenisca ‘marès’, procedente del mismo término municipal de Palma, por ser uno de los materiales locales industrializados con menos energía incorporada, y que configura gran parte del paisaje construido de la isla, presente tanto en la arquitectura vernácula como la institucional.
