Casa 1616
Harquitectes. David Lorente Ibáñez, Josep Ricart Ulldemolins, Xavier Ros Majó, Roger Tudó Galí BarcelonaSe trata de una casa unifamiliar entre medianeras en un contexto urbano y denso en el barrio de Sant Gervasi de Barcelona.
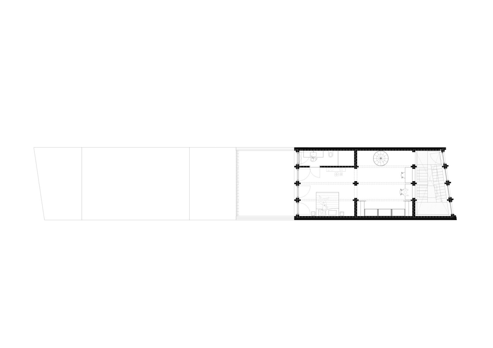
La propuesta se define en dos decisiones básicas, por un lado, promover la privacidad en sección asignando a cada uno de los tres niveles un perfil de usuario, y por otro lado, la casa se relaciona con el exterior a través del jardín, situando en la fachada de la calle el gran espacio de la escalera. Ambas decisiones permiten que las plantas sean prácticamente diáfanas y que el espacio de escalera pueda funcionar como un patio favoreciendo la ventilación natural y limitando el ruido o molestias de la calle.
La planta baja aloja los usos comunes y sociales de la familia en un espacio único, es mayor que las plantas superiores y aprovecha el volumen de una construcción original que existía en la parcela. La planta primera se destina a habitación, juego o estudio de los niños y la planta superior al reposo y trabajo de los padres.
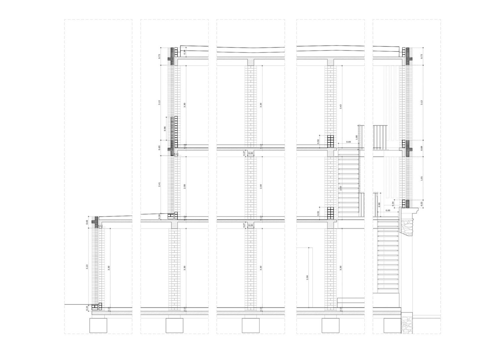
Para ajustar los distintos usos sin perder la diafanidad de las plantas, la estructura muraria paralela a fachadas se disuelve en forma de pilares de ladrillo en cruz muy próximos entre sí que acaban conteniendo los principales atributos del espacio e incluso de las fachadas. Las losas transmiten los esfuerzos a los pilares a través de nervios igual de esbeltos.
