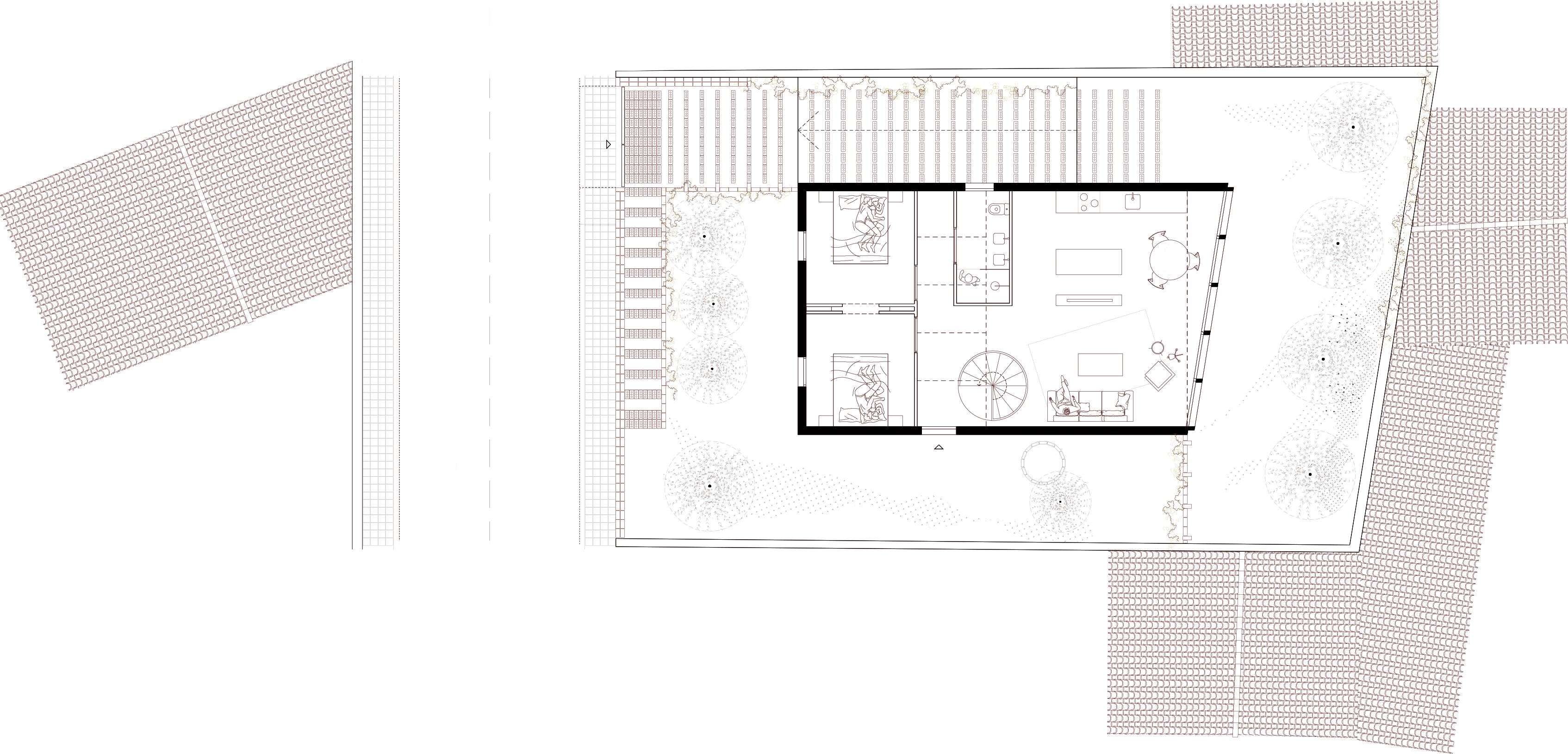
Casa sobre un zócalo de ladrillo
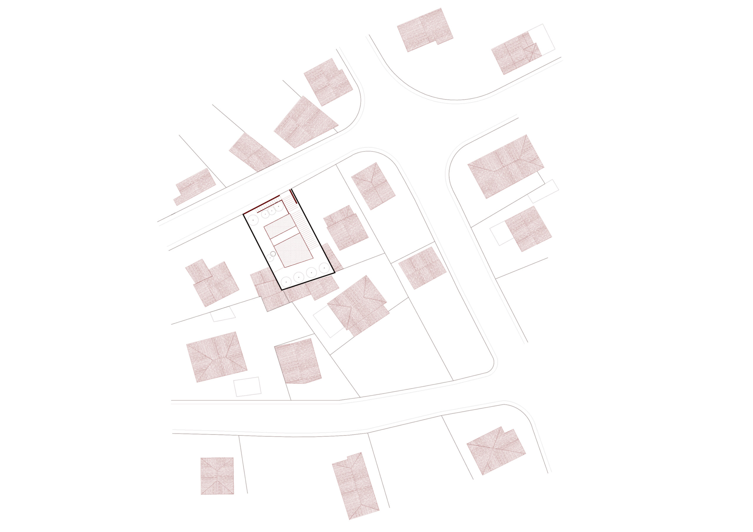
Ágora Arquitectura. Joan Casals Pañella y Jose Luís Cisneros Bardolet Sant Vicenç Dels Horts, BarcelonaSant Vicenç dels Horts tiene un origen agrícola. Es un lugar con una fuerte presencia de campos de cultivo que abastecen la ciudad de Barcelona. Tierras arcillosas definen el suelo. Bosques de pinos determinan el horizonte. Techos cubiertos de tejas definen las envolventes y revocos de cal blanca la vida comunitaria.
Se emplean estos materiales próximos. El zócalo de ladrillo se funde con el suelo del lugar. La envolvente prefabricada de CLT revestido de corcho dialoga con el paisaje boscoso. La cerámica triturada, proveniente de los desechos de la construcción, reconoce las cubiertas vecinas, y los encalados de color blanco, las estructuras verticales de las comunidades próximas.
La cerámica es un material 100% ecológico por su composición fundamentalmente arcillosa. Los paneles de madera de CLT, formados por capas de madera aserrada encoladas de forma perpendicular, suponen la oportunidad de utilizar un sistema estructural ligero, con sello FSC, aislante y de nulo mantenimiento. El corcho expandido es un aislante de bajo coeficiente de conducción térmica.
Se pensó en la posibilidad de prefabricar la envolvente estructural en un recinto controlado a distancia. Todo se prefabricó en piezas de tamaño transportable. Posteriormente se trasladaron las piezas construidas al emplazamiento y fueron ensambladas en seco in situ en un único día.
