Celosía habitable, 54 Viviendas sociales en Bonpastor
Marta Peris, José Toral, Jaume Pastor Calle de les Novelles, 2-4-6-8-10, BarcelonaEl Plan de Remodelación de Bon Pastor propone demoler las 784 Casas Baratas de 1929 y reemplazarlas por bloques aislados. La antigua configuración urbanística fomentaba un estilo de vida comunitario y un ambiente de pueblo en la ciudad. El cambio en la tipología de edificación ofrece vistas al río Besós y al futuro parque.
El edificio consta de celosías que filtran el aire, proveniente del mar y que circula por el corredor verde del Besós. Se incluyen espacios intermedios como patios de acceso, terrazas orientadas al parque y una terraza comunitaria en la cubierta, conectando los cinco núcleos. La banda de espacios exteriores, compuesta por escaleras comunitarias y terrazas, crea una celosía habitable a escala urbana. En planta baja se combinan terrazas y patios de ventilación para el aparcamiento, actuando como filtro de privacidad para las viviendas. El aparcamiento cuenta con ventilación cruzada e iluminación natural permitiendo una adaptabilidad en el tiempo para cambios de uso debido a los nuevos modelos de movilidad.
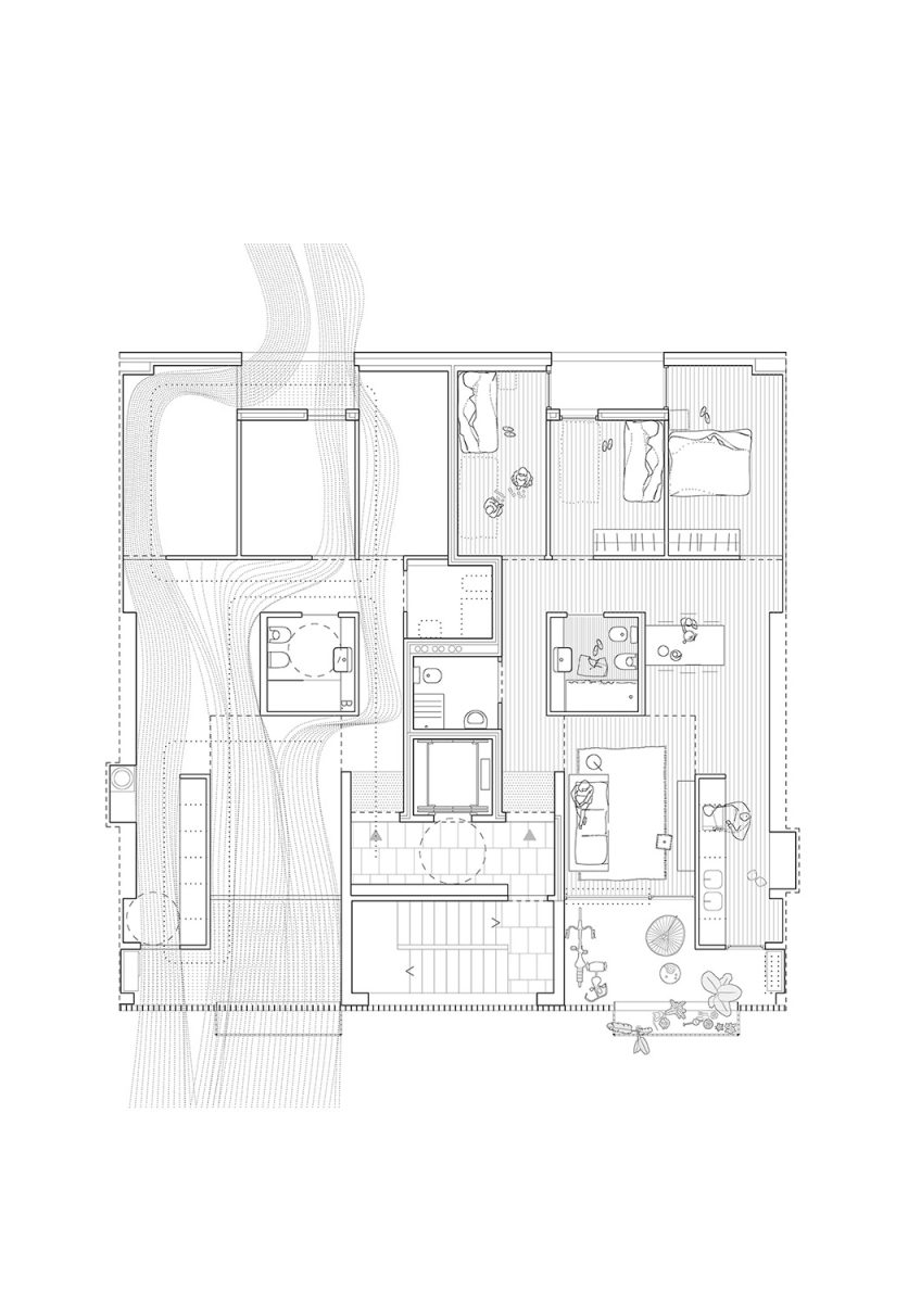
El edificio está dotado de balcones metálicos prefabricados diseñados como soporte de vegetación, ello permite que la fachada funcione como filtro de privacidad, a la vez que proporciona una manera de reintegrar la naturaleza en el vecindario. La vivienda pasante se organiza alrededor de un núcleo central y la cocina, articulando una secuencia fluida de espacios. Se generan perspectivas que atraviesan la casa y circulaciones en bucle. Esto brinda la sensación de una casa con numerosos recorridos posibles pareciendo más amplia de lo que realmente es.
