Escuela Inicial 140 en la comunidad de Santa Cruz de Villacuri «Barrio Chino»
Betsaida Curto Reyes, Ander Bados Sesma Santa Cruz de Villacuri, Salas, Ica, PerúVillacuri, ubicada en el desierto peruano, se encuentra a medio camino entre Ica y Paracas, junto a la Panamericana Sur. Es un lugar con miles de habitantes que trabajan sin descanso en las agroexportadoras cercanas. El proyecto parte de una iniciativa de una ONG para reconstruir la escuela después del terremoto de 2007.
El denominador común entre las edificaciones de Villacuri es el uso de materiales sin revestimiento, por lo que se utilizan los materiales tal y como son: bloques, hormigón, esteras, caña brava y madera. Esto representó un ahorro importante. A la vez, la sinceridad del material ayuda a que la comunidad pueda sentirse identificada y dignificada con los métodos constructivos locales.
Una de las necesidades era combatir las altas temperaturas del desierto. Se reinterpretan los techos tradicionales de Ica: bajo la losa de hormigón, se utiliza un plano continuo de caña brava que genera una cámara de aire y su prolongación genera elementos de sombra en el exterior. Esto, junto con la ventilación cruzada, ayuda a reducir considerablemente las temperaturas interiores.
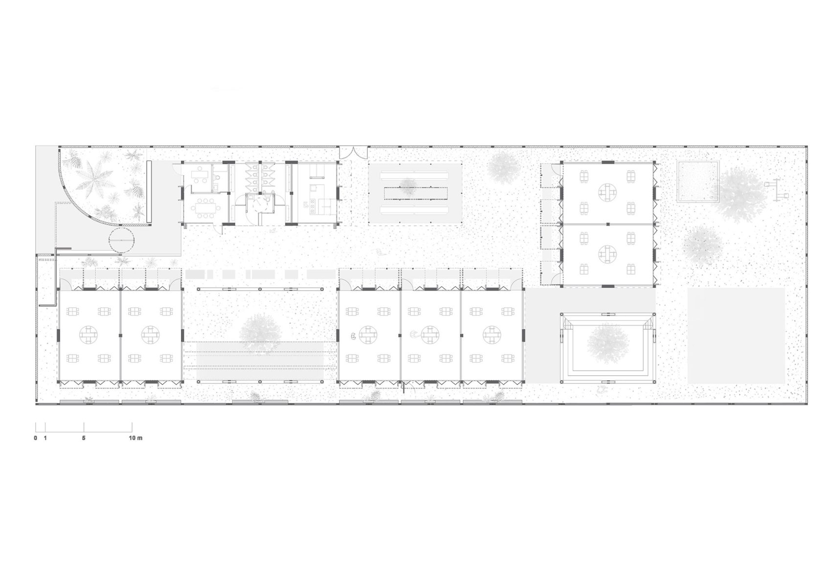
Se plantea una retícula de espacios con dimensiones proporcionales generando un juego de llenos y vacíos. Los llenos dan cabida a las siete aulas y al edificio de servicios, los vacíos crean tres espacios que complementan y se intercalan entre los edificios, desahogando la parcela. Se crea un anfiteatro, un claustro con sombras y un comedor al aire libre bajo una gran sombra. Estas zonas están marcadas por elementos clave: sombras, bancadas y olivos. Son, en definitiva, aulas sin muros.
