LR House
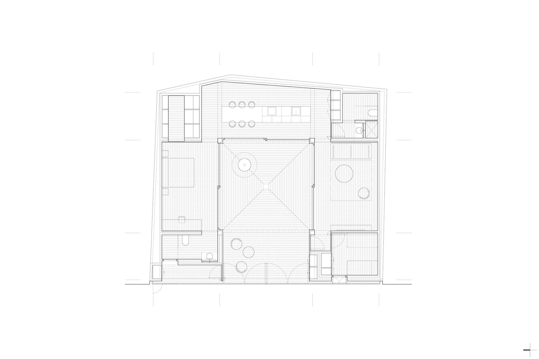
Iñigo Beguiristain Reparaz, Jokin Lecumberri Larrea, Antonio Cidoncha Pérez Calle Pamplona 43, Cintruenigo, NavarraSe parte de un único requerimiento, una vivienda en una planta, en una parcela reducida y sensiblemente cuadrada, con uno de sus lados abierto a una calle estrecha. El entorno, un núcleo rural de baja densidad típico de La Ribera de Navarra, se caracteriza por la heterogeneidad de sus edificaciones, con la desarraigada aridez y los tonos lavados de sus fachadas como único aglutinante del discurso urbano. En este contexto, la estrategia se apoya en la negación del ámbito, con una fachada sutilmente muda y la reivindicación de la nueva arquitectura para dotar de interés y calidad ambiental a una vivienda, introvertida, que se mira a sí misma.
Alumbrado por la evocadora imagen del impluvium romano, el proyecto se estructura inevitablemente en torno a un patio. Este vacío replica y regulariza la geometría autónoma del solar original y, a modo de troquel urbano, busca dinamizar y articular el espacio doméstico. Es una estructura nítida, sugerida por Kahn, que establece una jerarquía evidente para los distintos usos de la casa. Las dependencias de servicio se arrinconan en las cuatro esquinas, liberando para las estancias más nobles del programa los espacios que gozan de mejor iluminación y ventilación. Las paredes móviles de vidrio y madera animan la sucesión continuada de espacios, abiertos y cerrados, cubiertos o no, en la que los límites se diluyen definitivamente cuando el patio, ocasionalmente, se abre a la calle e introduce el pueblo en la casa.
